Обяви За нас Контакти
Продава ЗАВЕДЕНИЕ
град София, Илинден
ул. Цар Симеон
1 730 000 €
3 383 585.90 лв.

(2 399 €, 4 692.04 лв./m2)
Не се начислява ДДС
История на цената
Публикувана в 16:40 на 23 октомври, 2025 год.
Обявата е посетена 2150 пъти.
Площ:
721 m2
Етаж:
Партер от 3
Газ:
НЕ
ТEЦ:
НЕ
Строителство:
Тухла, Въведен в експлоатация 2020 г.

Описание на имота:


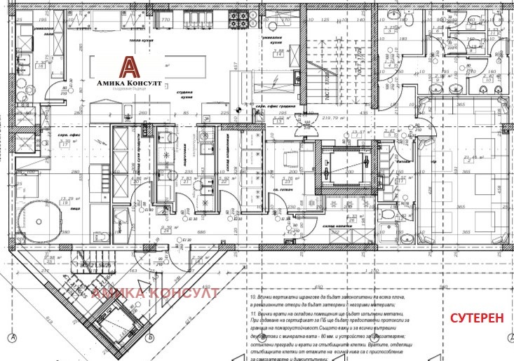
Предлагаме на Вашето внимание нашата най добра оферта за напълно оборудвано, и климатизирано работещо заведение с всички необходими разрешителни- категоризация находящо се в самостоятелна офис сграда!!! Заведението е разположено на три нива, като има следното разпределение: Сутерен-напълно оборудвана кухня със всичко необходимо за работа, складови помещения, офис, 3бр.санитарен възел, Vip зала за частни мероприятия разполагаща с 20 бр. седящи места, стълбище, асасньор, авариен изход, техническо помещение. 1-Ви етаж на кота 0,00 метра-партер: Основна зала със зимна градина разполагаща с около 100 бр. седящи места, санитарен възел, авариен изход, стълбище, асансьор, вход за зареждане, лятна градина разполагаща с около 110 бр. седящи места: 2-ри етаж: Основна зала с около 50бр.седящи места, авариен изход, стълбище, асансьор, Детски клуб, 4бр. санитарни помещения, балкон, тоалетна за инвалиди. Заведението материализира визията за модерно градско луксозно изпълнение, функционалност и удобство, спокойствие и сигурност, зелена околна среда и комуникативно местоположение с 24 часово видеонаблюдение !!! Огледи с предварителна уговорка и подписване на протокол за оглед !!!
Особености
Тухла
Асансьор
Обзаведен
Видео наблюдение
Контрол на достъпа
Саниран
За контакт:
0894689736
Брокер:
Ивайло Христов
+359894689736
Офис: София,кв.Лозенец ул.,,Златен рог 22 ет.5 офис 13А
Още оферти от брокера: Продава | Дава под наем | Купува | Наема
Агенция:
АМИКА КОНСУЛТ
0895662129
АМИКА КОНСУЛТ logo
Медал за прослужено време
В imot.bg от 2013 г.
a_consult.imot.bg
Адрес:
област София, гр. София, софия,Ул.Златен Рог 22, етаж 5, офис 13 А ЕИК:202239645
ИЗПРАТИ ЗАПИТВАНЕ
ИЗПРАТИ ЗАПИТВАНЕТО

Продава ЗАВЕДЕНИЕ
град София, Илинден
ул. Цар Симеон
Обява: 1m176122683931188

1 730 000 €
3 383 585.90 лв.
История на цената
(2 399 €, 4 692.04 лв./m2)

Не се начислява ДДС
ЗАПАЗИ ОБЯВАТА

Местоположение: град София, Илинден, ул. Цар Симеон

Допълнителни данни за имотите в района и сравнение с други райони

Покажи

Период

и 3 месеца

* Средните цени са определени чрез медианна стойност